「光で、空間を、心を、豊かに。」照明で"空間"のお困りごとを解決する有限会社ダイユーの照明空間のデザインとは
2023年12月19日 16時08分 有限会社ダイユー
-
ストーリーをシェアする
プロフィール

大友恒人
2002年九州芸術工科大学 卒業
2002年株式会社ワイライツ 入社 照明設計件営業を担当
2009年有限会社ダイユー 入社 照明設計件営業を担当
2016年有限会社ダイユー 代表取締役に就任
「光で、空間と心を豊かに。」光が空間に与える影響に魅了され、空間における照明デザインに情熱を注いでいる。
照明と電気の密接な関係を理解し、より伝わりやすいように3Dシミュレーションを駆使して光のイメージを共有。
個人の特徴に合わせ、実用的な光を提案し、ロービジョンや感覚過敏の方にも対応。
照明を中心に、豊かな空間と心を創り出すことが使命であり、お客様の要望に最適なサービスを提供している。
商品・サービス情報

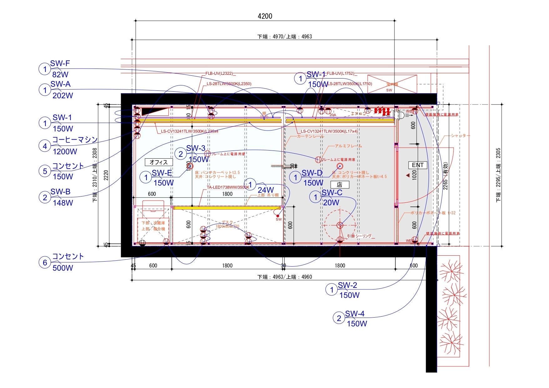
照明デザインシミュレーションサービス
当サービスは、最新のCG技術を活用し、リアルタイムで照明デザインをシミュレート。異なるシナリオの試行や省エネ最適化を通じて、効果的で持続可能な照明を提供します。
**特徴**
1. リアルタイムシミュレーション: 照明デザインの微調整や変更を即座に反映。デザインのリアルなプレビューを可能にします。
2. 異なる照明プランの試行: 複数のプランを試し、空間に与える効果を比較。クライアントが理想的と感じるデザインを見つけます。
3. 省エネルギー設計の最適化: 光量や配置を最適化し、省エネルギーで効果的なデザインを提供。環境への配慮を実現します。
**メリット**
1. 時間とコストの削減: プロジェクト初期段階でのCGシミュレーションにより、最適デザインを迅速に発見。無駄な時間とコストを抑えます。
2. デザインの確信度向上: CGシミュレーションで共感と理解を深め、クライアントとの円滑なコミュニケーションを促進。
3. 空間体験の最適化: 3DモデルやVRを活用して、デザインをリアルに可視化。クライアントは事前に空間を体験し、望ましい結果に確信を持てます。

感覚過敏サポート照明デザインサービス
当サービスは、感覚過敏の方に焦点を当て、照明デザインを提供しています。弊社は眼科医や研究者との緊密な連携を持ち、裏付けの取れた提案が可能です。
**特徴**
1. 感覚過敏対応デザイン: 光の調整や色温度の慎重な調整により、感覚過敏の方に優しい照明環境を構築。
2. 専門家との連携: 眼科医や研究者との協力により、医学的なアプローチで感覚過敏に適したデザインを提供。
3. 柔軟な対応: 個々の感覚過敏のニーズに合わせて、照明設計を柔軟かつ個別に調整。利用者にとって最適な環境を提供します。
**メリット**
1. 医学的に裏付けられた提案: 眼科医や研究者との連携により、医学的な根拠に基づいたデザイン提案が可能。感覚過敏へのアプローチが信頼性高く、安心してご利用いただけます。
2. 日常生活への適用: 家庭や職場、公共スペースなど、感覚過敏の方が日常で快適に過ごせるデザインを提供。生活全般において利用可能です。
3. ユーザー中心のサポート: 独自の研究に基づき、ユーザーの声やフィードバックに敏感に対応。感覚過敏の方と共に、最適な照明環境を築き上げます。
ストーリー素材ダウンロード
このストーリー内で使われている画像ファイルと報道用素材がダウンロードできます。
掲載内容や画像等は各媒体の報道にご利用いただけます。
このストーリーには、メディア関係者向けの特記情報があります
メディアユーザー登録を行うと、企業担当者の連絡先や、
イベント・記者会見の情報など様々な特記情報を閲覧できます。
※内容はストーリー・プレスリリースにより異なります。
イベント・記者会見の情報など様々な特記情報を閲覧できます。
※内容はストーリー・プレスリリースにより異なります。
有限会社ダイユーのストーリー
#照明デザイン #空間づくり #感覚過敏 に関連するストーリー
リンクをコピーしました