沖縄らしさをそのままに、琉球建築を新たな解釈でリデザイン。石垣島の平家を一棟貸し別荘「deigo-泥娯-」へと生まれ変わるまで
2023年7月27日 09時17分 ARPROコンサルティング株式会社
- 
                            ストーリーをシェアする 
商品・サービス情報
                                                                     
                                            
                                                deigo -泥娯-
                                            
                                            
                                                                                                                    
                                                            
                                                                【施設名】「deigo -泥娯- 」/ deigo ISHIGAKI
                                                            
                                                                                                            
                                                                                                    
                                                                                                                    
                                                            
                                                                【所在地】沖縄県石垣市新川63-2
                                                            
                                                                                                            
                                                                                                    
                                                                                                                    
                                                            
                                                                【最大宿泊人数】6名
                                                            
                                                                                                            
                                                                                                    
                                                                                                                    
                                                            
                                                                【宿泊料金】¥88,000〜
                                                            
                                                                                                            
                                                                                                    
                                                                                                                    
                                                            
                                                                【チェックイン】15:00【チェックアウト】11:00
                                                            
                                                                                                            
                                                                                                    
                                                                                                                    
                                                            
                                                                【アクセス】コンビニ(徒歩8分)、市街地(徒歩約10分)、南の島展望台(車16分)、石垣空港(車20分)、川平湾(車25分)
                                                            
                                                                                                            
                                                                                                    
                                                                                                                    
                                                            
                                                                【駐車場】敷地内に有(2台駐車可)
                                                            
                                                                                                            
                                                                                                    
                                                                                                                    
                                                            
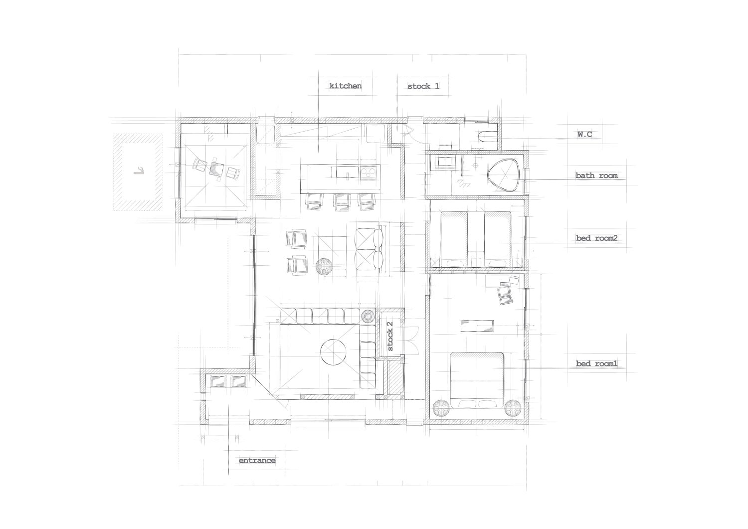
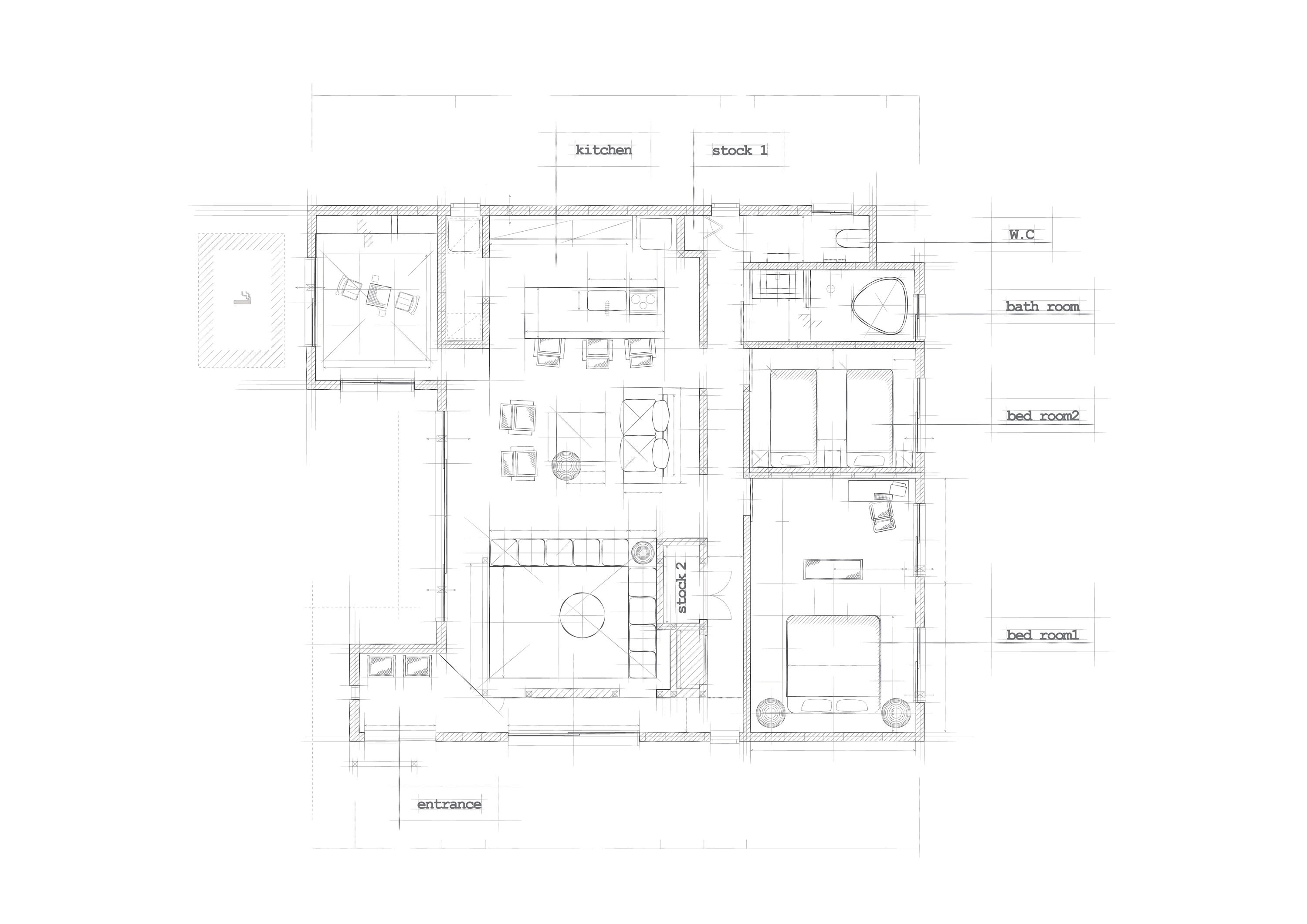
                                                                【間取り】延床131.54m²の広々一棟貸し別荘(平家3LDK)
                                                            
                                                                                                            
                                                                                                    
                                                                                                                    
                                                            
                                                                【Website】https://www.liblesgroup.com/deigo
                                                            
                                                                                                            
                                                                                                    
                                                                                                                    
                                                            
                                                                【instagram】https://www.instagram.com/deigo_ishigaki
                                                            
                                                                                                            
                                                                                            
                        
                            ストーリー素材ダウンロード
                        
                        
                
                            このストーリー内で使われている画像ファイルと報道用素材がダウンロードできます。
掲載内容や画像等は各媒体の報道にご利用いただけます。
ARPROコンサルティング株式会社のストーリー
#開発ストーリー #石垣島 #空間デザイン に関連するストーリー
リンクをコピーしました












