測量業の衰退を救いたい!JFDエンジニアリングによる業界を進化させる新たな技術「3D敷調」の誕生秘話と測量業の未来に向けた想い
2024年1月12日 10時00分 株式会社JFDエンジニアリング
-
ストーリーをシェアする
商品・サービス情報

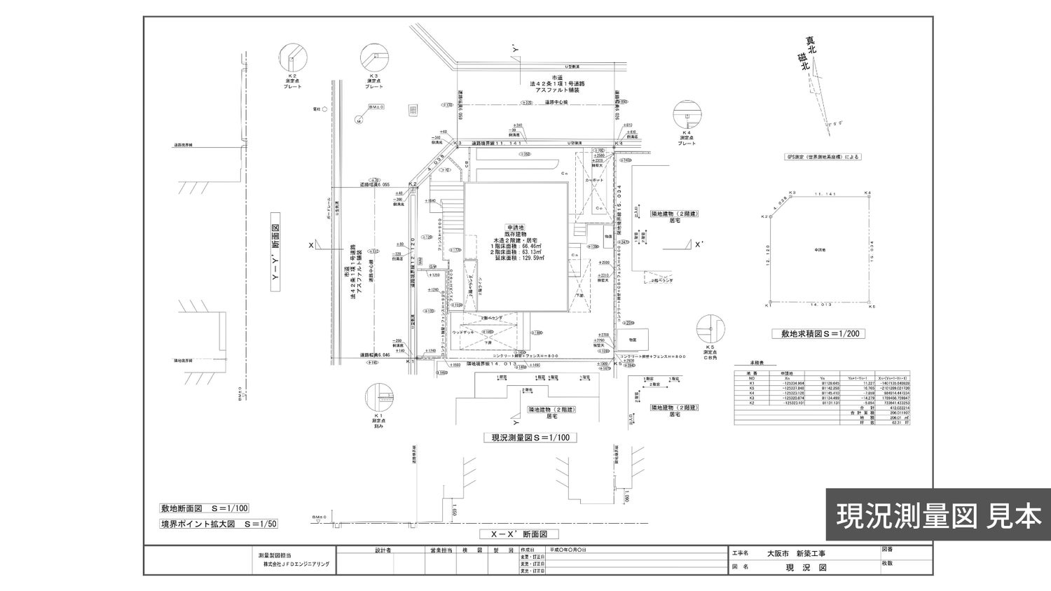
3D敷調
現況測量図+3D敷地データで、現地確認の手間を削減!
架線の高さ、高低差、隣地の窓位置...等々、図面だけでは分からなかった情報も現地に行かずに確認できます。
営業・設計・工務みんなが活用できる敷地調査「3D敷調」

ARパース
【3D敷地データ×建築パース】
3D敷調で作成した3D敷地データに建築パースを合わせ、隣地状況も反映したリアルな日照をシミュレーション。
リビングの採光や眺望など、実際の暮らしのイメージを確認して後悔のない家づくりを。
施主様との打ち合わせをよりスムーズに。
目隠しの位置や高さ、植栽の日照確認など外構計画にも。
ストーリー素材ダウンロード
このストーリー内で使われている画像ファイルと報道用素材がダウンロードできます。
掲載内容や画像等は各媒体の報道にご利用いただけます。
このストーリーには、メディア関係者向けの特記情報があります
メディアユーザー登録を行うと、企業担当者の連絡先や、
イベント・記者会見の情報など様々な特記情報を閲覧できます。
※内容はストーリー・プレスリリースにより異なります。
イベント・記者会見の情報など様々な特記情報を閲覧できます。
※内容はストーリー・プレスリリースにより異なります。
株式会社JFDエンジニアリングのストーリー
#サービスの誕生秘話 #建築 #人材不足 に関連するストーリー
リンクをコピーしました